
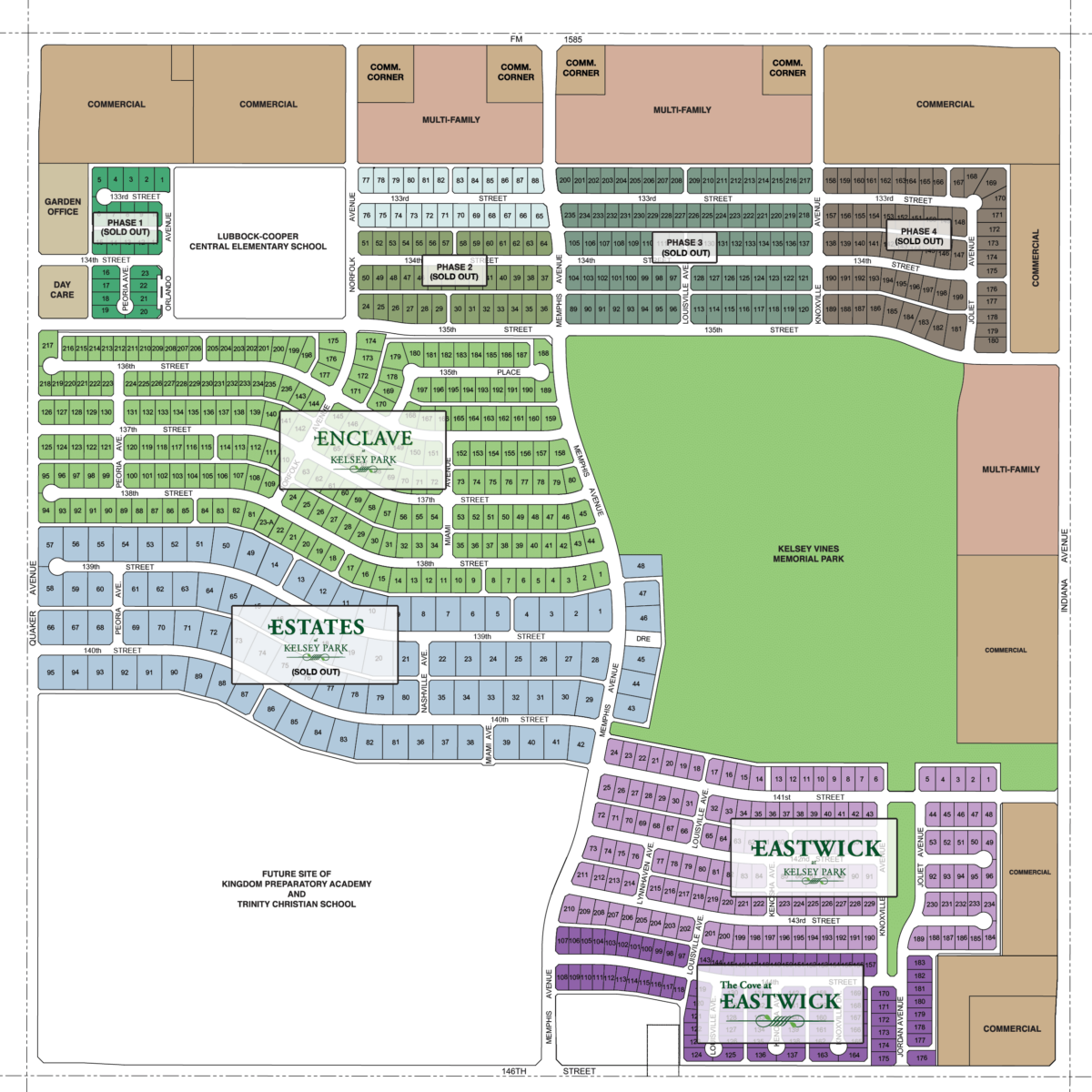
With approximately 800 single-family lots, an 80+ acre park, award-winning schools, and a convenient south Lubbock location, Kelsey Park is a Lubbock community that has everything you’re looking for in a place to call home!
Phases
- Phase 1 – Sold Out
- Phase 2 – Sold Out
- Phase 3 – Sold Out
- Phase 4 – Sold Out
- Enclave – Sold Out
- Estates – Sold Out
- Eastwick
- Cove at Eastwick
- Kelsey Business Park
- Kelsey Office Park (Garden Office)
